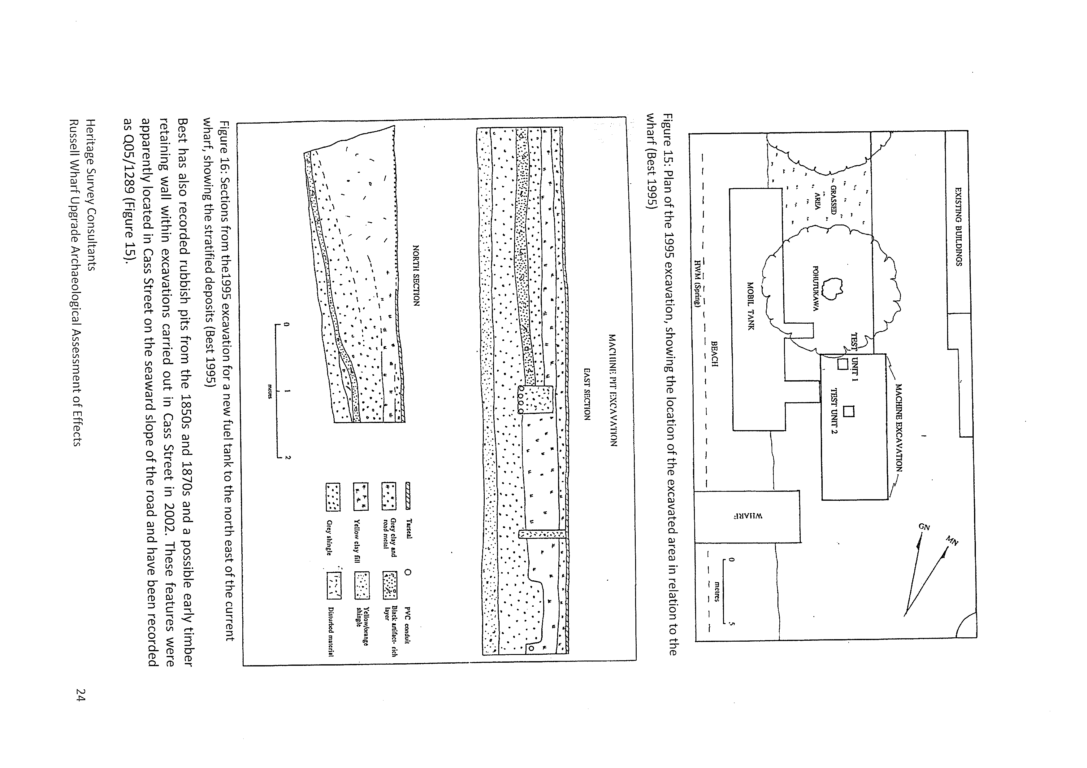
Download original attachment
(PDF file)
This is an HTML version of an attachment to the Official Information request '
Heritage values advice on Russell Wharf
'.