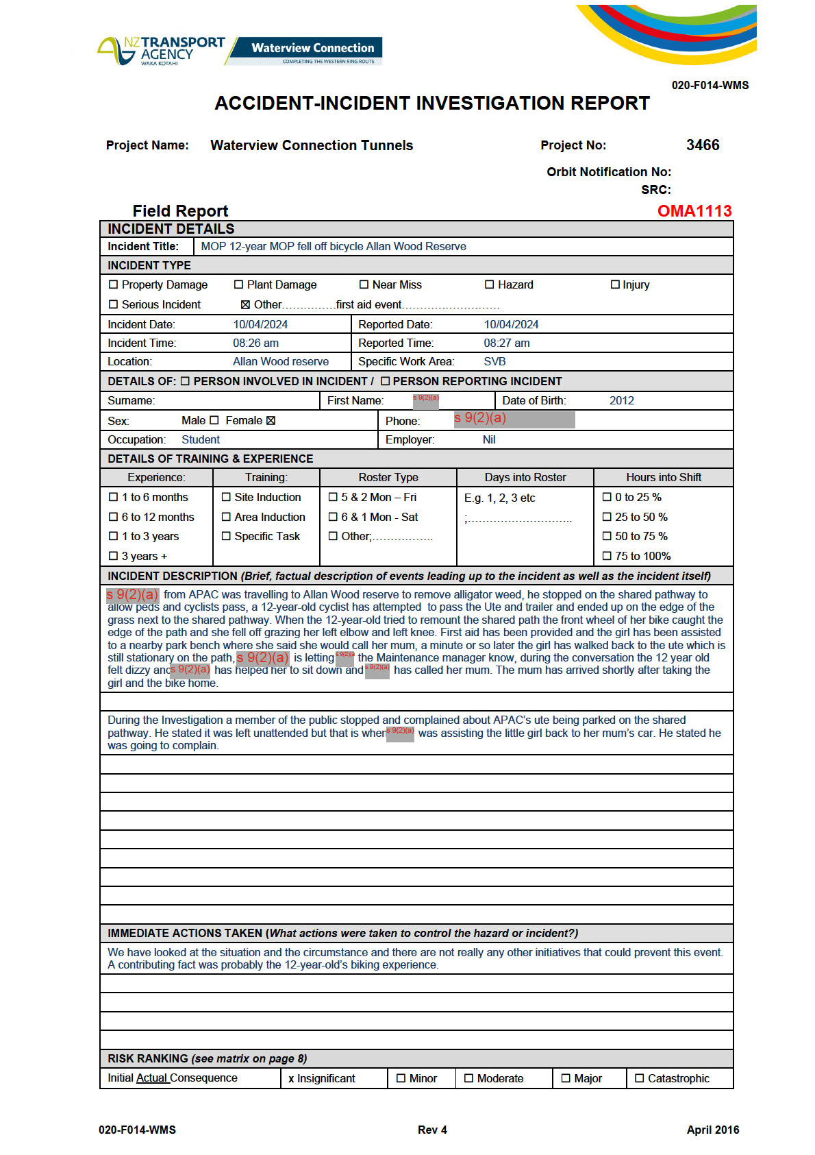
This is an HTML version of an attachment to the Official Information request 'Investigation Regarding Bicycle Accident on SW Path 10/04/24'.

1982
Act 
Information 
Official 
the 
under 
Released 


1982
Act 
Information 
Official 
the 
under 
Released 


1982
Act 
Information 
Official 
the 
under 
Released 




 
 
 
020-F014-WMS 
ACCIDENT-INCIDENT INVESTIGATION REPORT 
 
 
 
1982
Act 
Information 
Official 
the 
under 
Released 
020-F014-WMS 
Rev 4 
April 2016 





 
 
 
020-F014-WMS 
ACCIDENT-INCIDENT INVESTIGATION REPORT 
 
1982
Act 
Information 
Official 
the 
under 
Released 
020-F014-WMS 
Rev 4 
April 2016 





 
 
 
020-F014-WMS 
ACCIDENT-INCIDENT INVESTIGATION REPORT 
 
1982
Act 
Information 
Official 
the 
under 
Released 
 
 
 
 
 
 
 
020-F014-WMS 
Rev 4 
April 2016 





 
 
 
020-F014-WMS 
ACCIDENT-INCIDENT INVESTIGATION REPORT 
 
 
 
1982
Act 
Information 
Official 
 
 
 
 
the 
 
 
 
 
 
 
 
 
under 
 
 
 
 
 
 
 
 
 
 
 
 
 
Released 
 
 
 
 
 
 
 
 
 
 
 
020-F014-WMS 
Rev 4 
April 2016 


1982
Act 
Information 
Official 
the 
under 
Released 


1982
Act 
Information 
Official 
the 
under 
Released 


 
 
 
020-F014-WMS 
1982
ACCIDENT-INCIDENTINVESTIGATION REPORT 
 
 
 Organisational 
Task / 
Individual / 
Absent or 
Incident 
Act 
 
 
Factors 
Environmental 
Team Actions 
Failed 
 
 
Conditions 
Defenses 
 
 
 
 
 
 
 
 
 
 
 
 
 
 
 
Information 
 
  
 
 
 
 
 
 
 
 
 
 
Official 
 
 
 
 
 
 
 
the 
 
 
 
 
 
 
 
 
 
 
 
under 
 
Released 
020-F014-WMS 
Rev 4 
April 2016 


1982
Act 
Information 
Official 
the 
under 
Released 


1982
Act 
Information 
Official 
the 
under 
Released