link to page 2 link to page 2 link to page 12 link to page 17
Table of Contents
1.
REDACTED - 12.2 View Rd sale and purchase report - 17 June 2021, Public
1
Excluded Council Meeting Agenda, 20 May 2021
2.
REDACTED - 9.1 View Rd sale and purchase report - 17 June 2021
11
3.
REDACTED - Council 12 August 2020
16

OIA 21-094
Page 1 of 32

OIA 21-094
Page 2 of 32

OIA 21-094
Page 3 of 32

OIA 21-094
Page 4 of 32

OIA 21-094
Page 5 of 32

OIA 21-094
Page 6 of 32

OIA 21-094
Page 7 of 32

OIA 21-094
Page 8 of 32

OIA 21-094
Page 9 of 32
PUBLIC EXCLUDED EXTRAORDINARY COUNCIL MEETING
AGENDA
17 JUNE 2021
SUPPORTING INFORMATION
CONTRIBUTION TO COUNCIL’S STRATEGIC DIRECTION
The issues in this report contribute to the strategic priorities of a growing prosperous and regional y
connected city.
FINANCIAL CONSIDERATIONS
Cost
Financial considerations associated with the sale of the View Road units and the options open to
the Council are outlined throughout the body of this report.
Financial Implications
The GST Act contains specific rules in respect to the supply that whol y or partly consist of land.
This wil require that the sale of the properties wil be “zero rated” for the GST where Council sel s
the properties to:
A GST registered person who acquires the properties with the intention of using them to make
taxable supplies; and
The properties are not intended to be used as the principal place of residence of the purchaser
(or an associated person of the purchaser)
Where “Zero rating” applies, this effectively means that GST is charged by Council (but at 0%) and
no GST output tax is paid to Inland Revenue.
If the conditions of zero-rating cannot be met, for example if a government agency or developer
were to buy the properties with the intention of renting them as residential dwel ings (an exempt
supply rather than a taxable supply for GST purposes), then the sale would be subject to GST at
the standard rate of 15% and Council would have to pay GST output tax on the sale proceeds to
Inland Revenue.
It wil be important that the Sale and Purchase Agreement and the specific GST sections of the
Sale and Purchase agreement are completed correctly by both parties as this wil determine the
GST treatment for Council.
In order to protect Council from suffering GST impost on the sale price, the Sale and Purchase
Agreement should express the sale price as “plus GST (if any)”.
Costs of Sale
Council will be able to claim GST input tax on costs associated with the sale.
Income Tax
As Council is exempt from income tax (other than on income received from Council Control ed
Organisations), Council wil not be subject to income tax on the sale of the properties and nor wil it
be able to claim any deductions for income tax purposes.
STATUTORY REQUIREMENTS
Both parties have signed the Agreement for Sale and Purchase of real estate prepared by
Council’s Solicitors Simpson Grierson. The agreement contains extensive purchaser
acknowledgements regarding the weathertight nature of the property. The Purchaser waives any
right or claim it may have against the Vendor in respect of the condition of the property; and must
not make any claim in the future. The Vendor gives no representation or warranties in respect of
the property apart from minor workings relating to general terms of sale.
Item 12.2
Page 9

OIA 21-094
Page 10 of 32
PUBLIC EXCLUDED EXTRAORDINARY COUNCIL MEETING
AGENDA
17 JUNE 2021
The Vendor enters into the agreement in its non-regulatory capacity. When acting in its regulatory
capacity it is entitled to consider al applications to it in relation to this Property without regard to
this agreement.
Ful disclosure regarding the View Road units weathertight nature has occurred with both parties
interested in purchasing the units.
FOUR WELL-BEINGS
The matter discussed in the report (the sale of weathertight property acquisition and options open
to the Council) primarily relate to the Social and Economic wel beings.
TREATY CONSIDERATIONS
There are no particular Treaty obligations to note for this report. Ngati Toa/TRORT’s interest in
acquiring the View Road units is set out in the report. Elected members wil take into account the
overal working relationship with Ngati Toa when making a decision on this matter.
SIGNIFICANCE
An earlier report to Council on this matter has highlighted that it fal s at the lower end of the
financial significant threshold range.
ENGAGEMENT AND COMMUNICATIONS
Most matters to date relating to acquisition of the units have been conducted in public excluded. A
press release informed the public about the Council’s August 2020 decision to retain the units until
such time as they could be sold. On receipt of the substantive offer from TROTR in February 2021
the units have been advertised for sale. An information pack was provided to al potential
purchasers or similarly interested parties.
A press release wil be prepared fol owing this meeting to inform the public what has been decided.
ATTACHMENTS
Nil
Item 12.2
Page 10

OIA 21-094
Page 11 of 32

OIA 21-094
Page 12 of 32

OIA 21-094
Page 13 of 32

OIA 21-094
Page 14 of 32

OIA 21-094
Page 15 of 32
PUBLIC EXCLUDED EXTRAORDINARY COUNCIL MEETING
AGENDA
17 JUNE 2021
ATTACHMENTS
1.
View Road Sale and Purchase Report, Public Excluded Council Meeting Agenda, 20
May 2021
Item 9.1
Page 5

OIA 21-094
Page 16 of 32
PUBLIC EXCLUDED COUNCIL MEETING AGENDA
12 AUGUST 2020
12.2
OPTIONS FOR 26 VIEW ROAD
Author:
Andrew Dalziel, Chief Operating Officer / Deputy Chief Executive
Pouwhakahaere Mahinga Rangatōpū / Tumuaki Tuarua
Authoriser:
Wendy Walker, Chief Executive
Tumuaki
Section under the
The grounds on which part of the Council or Committee may be closed to
Act
the public are listed in s48(1)(a)(i) of the Local Government and Official
Information Meetings Act 1987.
Sub-clause and
s7(2)(g), s7(2)(h) and s7(2)(i) - the withholding of the information is
Reason:
necessary to maintain legal professional privilege, the withholding of the
information is necessary to enable Council to carry out, without prejudice
or disadvantage, commercial activities and the withholding of the
information is necessary to enable Council to carry on, without prejudice
or disadvantage, negotiations (including commercial and industrial
negotiations).
PURPOSE
The report backgrounds the acquisition of the 24 units with weathertight defects at 26 View Road.
It discusses a range of related matters and sets out the various options Council has in respect to
remediating, renting, leasing, selling or demolishing the units. The recommendations in the report
follow from a Council Options Workshop on 2 July 2020 and an elected members site visit to the
View Road units on 4 June 2020.
RECOMMENDATIONS
That the Council:
1.
Receive the report.
2.
Agree to retain the units until such time as they can be sold “as is” for a satisfactory price, or
some similar solution is found for the units.
3.
Agree to undertake necessary repairs, maintenance and upgrades to allow the units to be
tenanted, on the understanding that the rental income will be used to offset the holding cost
of keeping the units.
4.
Agree that should a substantive offer be received, before considering that offer, the units be
advertised for sale “as is” with full disclosure of their defects, in order to ensure any other
possible offers are taken into consideration before a decision is made.
Reports contain recommendations only. Refer to the meeting minutes for the final decision.
BACKGROUND
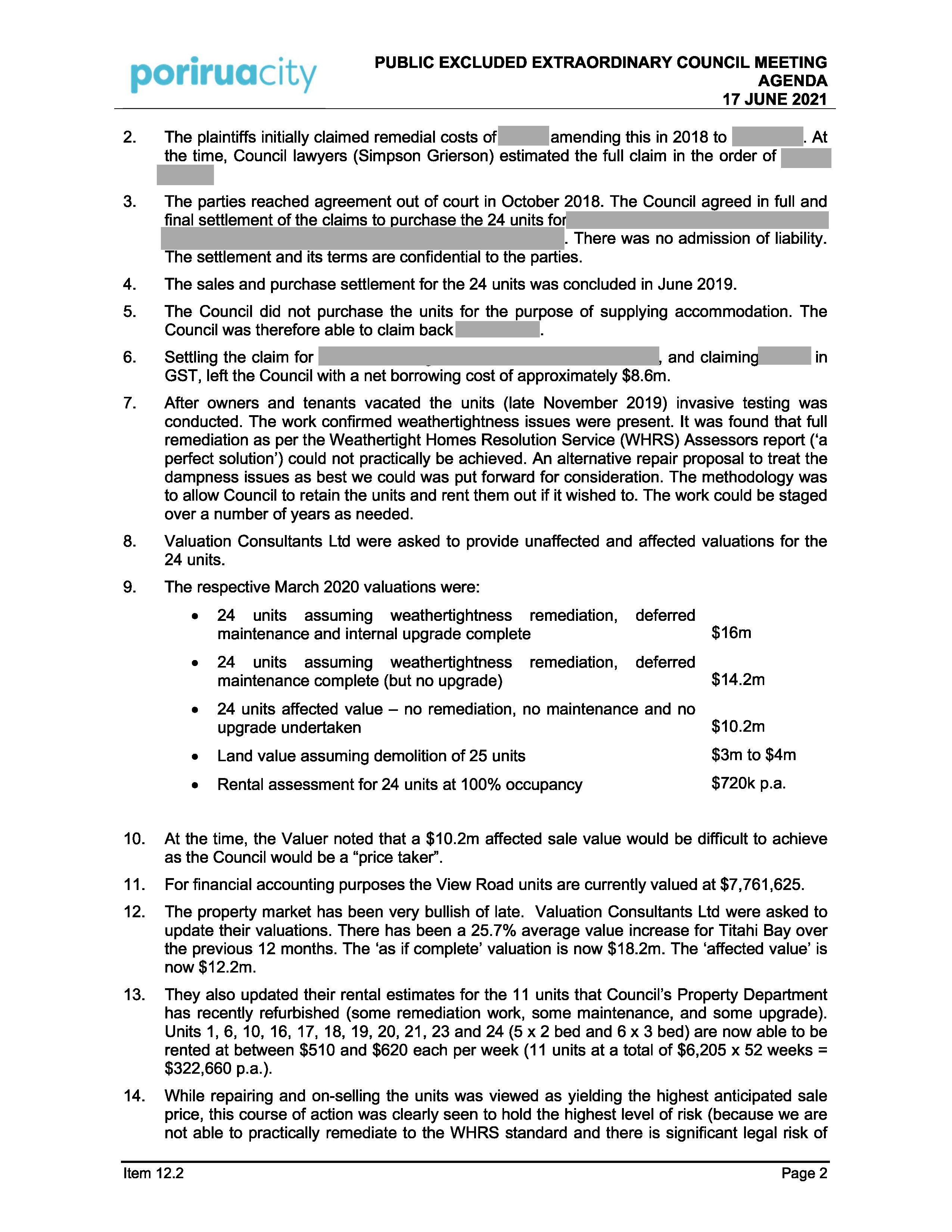
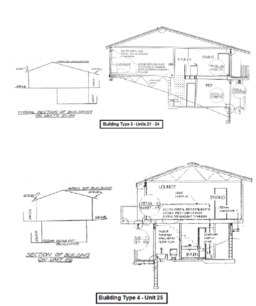
Description of the units
The 26 View Road site is comprised of 25 townhouses. There are 12 duplex units and a single unit
totalling 13 separate blocks in four different configurations. The building types and corresponding
units are outlined in the following table and diagram.
Item 12.2
Page 1

OIA 21-094
Page 17 of 32
PUBLIC EXCLUDED COUNCIL MEETING AGENDA
12 AUGUST 2020
Building Type
Relevant Units
Description
1
1-8
The garage effectively comprises the entire top
floor of the building.
The middle level is made up of a living area and
kitchen.
The lower level contains bedrooms and a
bathroom.
These units have three floors.
2
9-20
The garage effectively comprises the entire ground
floor of the building.
The middle level contains the living area, kitchen
and a toilet.
The top level contains the bedrooms a bathroom
and, in most cases, a closet laundry. These units
have three levels.
3
21-24
The top floor is made up of the garage, living area
and kitchen.
The lower floor contains bedrooms and a
bathroom.
These units have only two floors.
4
25
Unit 25 is the only unit onsite which is housed
entirely within its own building.
The top floor is made up of the garage, living area
and kitchen.
The ground floor contains the bedrooms and
bathroom.
Item 12.2
Page 2

OIA 21-094
Page 18 of 32
PUBLIC EXCLUDED COUNCIL MEETING AGENDA
12 AUGUST 2020
The units contain a mix of two and three bedroom; 13 of the units are three bedroom and 12 units
are two bedroom.
The units are located and cut into a steep hillside and are partially set above or below the access
road. They are set on concrete block retaining wall foundations which support up to two timber
framed upper levels. The cladding is a mix of painted fibre-cement weatherboard or textured fibre –
cement sheet and the roofs are painted steel. The decks are either concrete or cantilever timber
joists.
The units were all built by Hinds Builders Ltd under consent number 0564/06 and were completed
circa 2006. Code of Compliance certificates were issued by Porirua City Council in June 2007.
The location is close to the sea and is within a Zone D corrosion zone. The wind zone is likely to be
Specific Engineering Design.
Claim
In February 2016, the Body Corporate applied for a Weathertight Homes Resolution Service
(WHRS) assessors report. A WHRS assessors eligibility report was then issued in May 2016. It
confirmed that the development met the criteria set out in the WHRS Act 2006.
A WHRS assessors follow up full report then meticulously detailed the unit’s weathertight defects.
These are in summary:
a) Inadequately detailed and terminated waterproofing membranes to reinforced concrete
retaining walls.
b) Inadequate weatherproofing to first floor concrete balconies throughout Units 9-20.
c) Poorly detailed and terminated saddle flashings to cantilevered balcony joist penetrations.
d) Inadequate step down from driveway surfaces to interior floor levels.
e) Inadequately weatherproofed joinery units to rear access doors.
In addition, the WHRS report identified a number of deficiencies that in the opinion of the Assessor
could lead to future water entry and damage.
f) Lack of drainage at the base of cavity wall construction.
g) Inadequate separation and clearance of cladding to party walls above exterior timber
decking.
h) Inadequate clearance of head flashings above ranch slider doors.
i) Inadequately weatherproofed horizontal plastered surfaces to party wall projections.
The Assessor set out a full “scope of works” to fix the units. The work in summary is:
a) Excavation and replacement of the waterproofing membranes to the below ground concrete
retaining walls (all units).
b) Uplifting existing tiles and balustrades to concrete balconies and installation of
waterproofing membranes (Units 9-20).
c) Modification of existing timber slatted decks, where installed to the rear elevation. This will
include some partial recladding of weatherboards and replacement of decay damaged
timber framing (Units 1-8 and 21-25).
d) Recladding of the fibre-cement weatherboards to the front elevations of Units 1-8 and
installation of walls either side of the garage doors (Units 1-8).
e) Temporary removal and reinstallation of the rear single access doors and installation of sill
tray flashings (Units 9-20 only).
Item 12.2
Page 3

OIA 21-094
Page 19 of 32
PUBLIC EXCLUDED COUNCIL MEETING AGENDA
12 AUGUST 2020
Future damage repairs – (optional work if considered to be needed):
f) Removal and replacement of the lowest fibre-cement weatherboard to all sections of fibre-
cement weatherboards (where not already affected due to other repair works), remove the
existing horizontal timber battens and the base of each elevations section and replace with
new timber battens to allow drainage /ventilation (all units).
g) In conjunction with removal of the existing timber decks to the rear elevations of Units 9-20
(due to excavation around retaining walls, ensure new decks are constructed with suitable
separation and clearance to existing clad party walls (Units 9-20).
h) Remove the weatherboard above the existing head flashings adjoining the ranch slider
doors (excluding on upper levels where under wide eaves), replace the current lapped
flashings with a continuous welded powder-coated metal head flashing and install new
weatherboards above each new flashing (all units).
i) Retrospective installation of metal capping to horizontal plastered surfaces above projecting
party walls. In localised areas (between Units 5 & 6 and 7 & 8).
The cost of repair was independently estimated by a QS during the WHRS assessment process,
as:
Current defects allowing water entry $4,094,235.00
inc GST and Professional fees
Future damage
$75,765.00
inc GST and Professional fees
Total estimated cost:
$4,170,000.00
N.B. – 85% ($3.5m) of this cost estimate is in regards to the cost of excavation and replacement of
the tanking membranes.
That cost will have since increased.
In June 2017, the Body Corporate and 24 of the 25 units issued proceedings against the Council
and Hinds Builders Ltd in the High Court, alleging that the development suffered defects and
damage. The owners of unit 3 did not participate in the proceedings. Unit 3 is identified in red on
the following aerial picture.
Item 12.2
Page 4

OIA 21-094
Page 20 of 32

OIA 21-094
Page 21 of 32

OIA 21-094
Page 22 of 32

OIA 21-094
Page 23 of 32
PUBLIC EXCLUDED COUNCIL MEETING AGENDA
12 AUGUST 2020
After the invasive testing work was carried out, Valuation Consultants Ltd were asked to provide
unaffected and affected valuations for the 24 units; a valuation for just the land (assuming
demolition of the buildings had occurred); and a rental assessment for the 24 units.
The respective April 2020 valuations are:
• 24 units assuming weathertightness remediation, deferred
$16m
maintenance and internal upgrade complete.
• 24 units assuming weathertightness remediation and deferred
$14.2m
maintenance complete (no upgrade)
• 24 units affected value – no remediation, maintenance or upgrade
$10.2m
undertaken
• Land value assuming demolition of 25 units with the purchase of
Unit 3
1. Sale to individual builders
$3.5m to $4m
2. Sale to one developer
$3m
3. Sale to one developer with slabs left in place
$3.5m
• Rental assessment for 24 units at 100% occupancy
$720k p.a.
The valuer noted that the $10.2m affected value would be difficult to achieve. Banks will not
finance weathertight building purchases. The Council would be a “price taker”.
While the current QV land value is $5.6m, the valuer stated that this figure does not represent the
underlying land value. It would not be feasible to sell duplex sites even if they were re-subdivided
down to individual fee simple sites. So instead of 25 lots, there are 13 lots for practical purposes.
Dual sites tend to sell for a premium of 30% to 40% above the selling price of a single site.
Alternative repair proposal
The Council now has three expert reports confirming weathertight defects with the units. However,
as was seen on the elected member site visit on 4 June, the damage actually appears relatively
minor. Despite the identified issues, the buildings have been largely fit for purpose since they were
built. The buildings look to be sound and appear well constructed.
The units cannot be fully remediated as per the ‘perfect’ solution set out by the WHRS. An
alternative repair proposal is to treat the dampness issues as best we can. The balconies can be
remediated. The top section of the weather proofing membrane of the basement walls can be
upgraded. A specialist negative pressure membrane can be applied to internal walls.
This is a methodology to use if the Council retains the units and rents them out. The work can be
staged over a number of years as needed. The Council would also need to address some deferred
maintenance items.
Item 12.2
Page 8

OIA 21-094
Page 24 of 32
PUBLIC EXCLUDED COUNCIL MEETING AGENDA
12 AUGUST 2020
The alternative repair work is summarised as:
Area
Work item
Upgrade balcony
• Remove and dispose of existing balustrades
membrane
• Remove and dispose of all tiles and prep slab
12 units
• Install new appropriate membrane on concrete balcony
$19k a unit / total cost if
(sealing cold joint)
applied to all 12 units
$230k
• Install new tiles on balcony
• Install new metal side mounted balustrades
• Strip away layers of gib encasing steel beam
• Grind back or wire brush off existing surface rust and paint
• Reinstate gib, plaster and paint
This would be priority one work. It would be carried out first to the units that obviously require it.
Area
Work item
Upgrade top termination
• Excavate around the top of the basement walls to expose
of retaining wall
membrane
membrane
• Prepare wall to take new membrane
24 units
• Lap new membrane strip over the top of the existing
$14k a unit / total cost if
membrane
applied to all 24 units
•
$340k
Terminate top of membrane with new pressure bar flashing
• Install protection and backfill
This would be priority two work. This would only be done as necessary where there is obvious
dampness and moisture issues.
Area
Work item
Treat rising damp with
• Remove interior lining trip and battens to expose block walls
negative pressure slurry
• Treat walls with specialist coating
11 units
• Reinstate linings & trim on new battens
$102k a unit / total costs if
•
applied to all 11 units
Paint and new floor coverings in effected rooms
$1.1m
• Electrical and plumbing disconnections and reconnections
• Make good affected joinery units
This is also priority two work, only undertaken to units as required.
Item 12.2
Page 9

OIA 21-094
Page 25 of 32
PUBLIC EXCLUDED COUNCIL MEETING AGENDA
12 AUGUST 2020
Area
Work item
Deferred maintenance
• Repaint exterior surfaces
$800k
• Rescrew roofing
• Replace Galvanise fixings with new S/Steel
• Upgrade existing barriers and fences and install new vehicle
barrier
This work is priority three. Some aspects like exterior painting can be pushed out quite a number of
years.
Building Consent
While a building consent would be required for the nature of the work required to undertake the
WHRS Assessor’s scope of works, a building consent would not be required for the alternative
repair work. The structure has not yet failed durability Clause B2 of the New Zealand Building
Code. The damage is quite minor. The repair work is about keeping water out, not remediating
damaged framing. Under Schedule One of the Building Act 2004 repairs can be undertake as part
of normal repair and maintenance. The work itself would need to be carried out in a way that is
compliant with the Act.
Residential Tenancies Act and Healthy Homes Standards
If the Council repairs and rents the units, it will be subject to obligations under the Residential
Tenancies Act, including the Healthy Homes Standards.
Under the Residential Tenancies Act 1986, landlords are generally responsible for:
• providing the premises in a responsible state of cleanliness;
• providing and maintaining the premises in a reasonable state of repair;
• complying with smoke alarm, healthy homes standards, and requirements under other
enactments;
• providing for the collection and storage of water where there a reticulated water supply
does not exist;
• compensating the tenant where the tenant has spent money on fixing something urgently in
circumstances where the tenant has made reasonable attempts to notify the landlord of the
problem; and
• taking reasonable steps to make sure that other tenants do not interfere with the
reasonable peace, comfort and privacy of the tenant.
There are five healthy homes standards:
Heating, insultation, ventilation, draught stopping and moisture ingress and drainage. The Council
would be required:
• to immediately comply with the insulation requirements in the Health Homes Standards
upon letting an apartment; and
• to comply with the remainder of the standards (relating to heating, draught stopping,
ventilation, moisture and drainage) by 1 July 2021.
Most standards (including the moisture tightness and drainage standard) are subject to the
“reasonably practicable” standard, which states that the standards do not apply where it is not
reasonably practicable for the landlord to fulfil them.
Our assessment is that if we undertake repairs we will be able to meet the legislative obligations.
Before tenanting we would also be wise to obtain an independent experts sign-off for acceptable
moisture levels.
Item 12.2
Page 10

OIA 21-094
Page 26 of 32

OIA 21-094
Page 27 of 32

OIA 21-094
Page 28 of 32

OIA 21-094
Page 29 of 32

OIA 21-094
Page 30 of 32

OIA 21-094
Page 31 of 32

OIA 21-094
Page 32 of 32
PUBLIC EXCLUDED COUNCIL MEETING AGENDA
12 AUGUST 2020
SUPPORTING INFORMATION
CONTRIBUTION TO COUNCIL’S STRATEGIC DIRECTION
The issues in this report contribute to the strategic priorities of a growing prosperous and regionally
connected city.
FINANCIAL CONSIDERATIONS
Financial considerations associated with the acquisition of the units and the various options open
to the Council are outlined throughout the body of this report.
STATUTORY REQUIREMENTS
A number of relevant statutory and legal obligations are outlined throughout the body of this report.
FOUR WELL-BEINGS
The matters discussed in this report (a weathertight property acquisition and options for its future)
primarily relate to the Social and Economic well beings.
TREATY CONSIDERATIONS
There are no particular Treaty obligations to note for this report. Ngati Toa’s possible interest in
acquiring the units is highlighted in the report.
SIGNIFICANCE
An earlier report to Council on this matter has highlighted that it falls at the lower end of the
financial significant threshold range.
ENGAGEMENT AND COMMUNICATIONS
Matters to date have been conducted in public excluded. However, once a formal decision is made
about the future of the units, a press release will be prepared to inform the public about what has
been decided. A pack of information wil also be assembled for “as is” purchasers or similarly
interested parties.
ATTACHMENTS
Nil
Item 12.2
Page 17
Document Outline